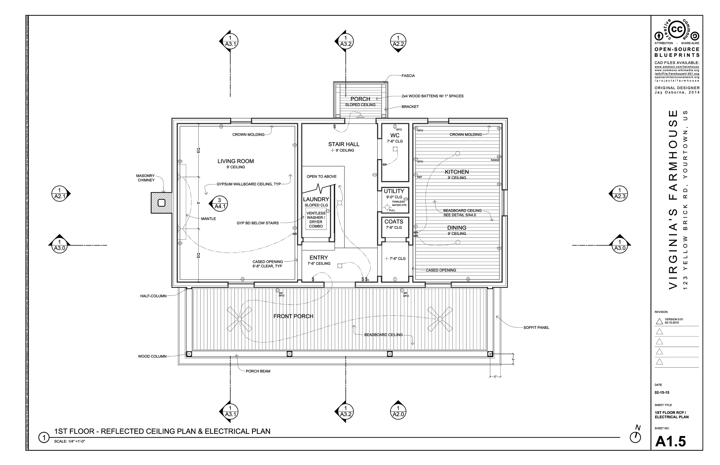
A 100-year-old farmhouse stands abandoned and overgrown in a Virginia forest. Iconic in form, yet humble in size, this design is a tribute to that forgotten place. 

This project is the first of its kind. This is the first open-source house design that you could conceivably build from -- and live within. The CAD file and drawing set, linked below, provides the information necessary to build this simple house.

For me, this is an art project. I've created all the content from scratch (including each symbol and every detail) in order to give it away for free under a creative commons license. I've never designed a house like this before, and perhaps never will again. So any feedback you might have-- especially with details and products-- would be helpful. Thank you.

This project is a way for me to reconnect with my roots before drifting into the frontier. I'm experimenting with ways to implement designs on a digital, web-based interface. Architects still have not embraced the "Internet Revolution", to use a 20-year-old phrase. Their drawings are still printed as big clumsy books (without any *multi-media* content) and each physical set of drawings can only be viewed by one or two people at once. This is hopelessly outdated. My next project is to create a website from these drawings. It is time to stop building walls around our work, and start making hyperlinks.

So here it is for free. A labor of love. I hope it's educational for anybody who wants to know what architects can create. And I hope it brings joy to anybody who wishes for a simple, humble house.

Download the entire drawing set here: ( PDF )

Download the model images here: (PDF)

Download the CAD file here: ( DWG )